Котёл КВм-5,4 на ДВО со шнеком в Нальчике

Водогрейный котел КВм-5.4 на ДВО используется для нагрева жидкости до 115 °С, применяемой в системах отопления и горячего водоснабжения. Отопительные приборы КВм-5.4 способны прогревать помещения площадью до 54000 м². Твердотопливный котел оснащается механической топкой на древесных отходах со шнековой подачей. Дополнительно к агрегату приобретаются сопутствующие товары: вентиляторы, дымососы, циклоны, дымовые трубы, бункер топки и другое котельное оборудование.

Цена:
2 430 000 руб.
Количество:
Отправляя свои личные данные через формы на сайте, Вы даёте своё согласие на обработку персональных данных согласно Федеральному закону №152-ФЗ «О персональных данных» от 27.07.2006 г. в редакции от 01.07.2017.

Устройство и принцип работы котла КВм-5.4 со шнековой подачей

Шнековая подача состоит из вместительного бункера с желобом, на дне которого расположен спиралевидный шнек. Измельченное топливо подается в камеру сгорания при помощи шнековых транспортеров: оно загружается в бункер, и, за счет вращения шнековой спирали, перемещается в топку котла. Частотность вращения шнеков регулируется котельной автоматикой и зависит от количества потребляемого топлива. После транспортера древесные отходы попадают на колосниковую решетку и сжигаются в слое. С заданной периодичностью на решетку поступает новая порция топлива. Когда топливо сгорает, оно падает в зольник, откуда вычищается при помощи скребкового механизма.

Сгорая, топливо производит тепловую энергию, которая нагревает воду в соседнем отсеке — котельном блоке. Когда температура теплоносителя достигает заданной отметки, устройство контролирует этот показатель, поддерживая его в постоянном режиме. Далее, нагретая жидкость может использоваться для отопления или горячего водоснабжения жилых домов, объектов промышленности, административных или общественных помещений.

Условное обозначение

Водогрейный котел КВм-5.4 на древесных отходах со шнековой подачей, где:

  • К — котел;
  • В — водогрейный;
  • м — механическая топка;
  • 5.4 — мощность топки.

Монтаж котла КВм-5.4 на древесных отходах со шнековой подачей

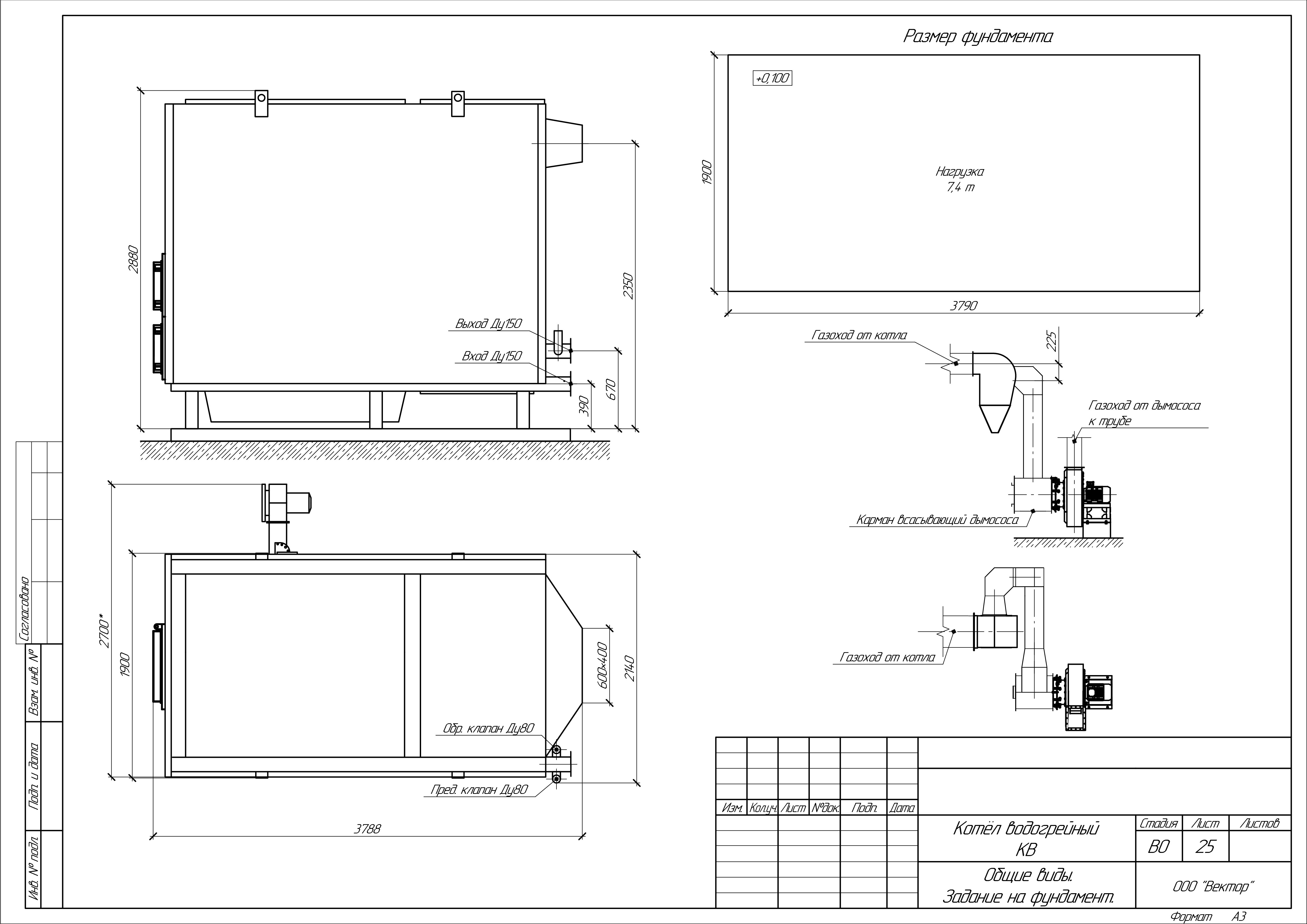
Котел КВм-5.4 на древесных отходах со шнековой подачей поставляется в удобном двублочном исполнении в полной заводской сборке, и легко стыкуются при монтаже. Устанавливается на предварительно выровненную поверхность без необходимости в строительстве специального фундамента. Крепится к поверхности при помощи анкерных болтов.

Монтаж котельного оборудования производится с соблюдением СНиП 11-35-76 «Котельные установки» и «Правил устройства и безопасной эксплуатации паровых и водогрейных котлов». Установка и пуско-наладочные работы выполняют специалисты, которые имеют разрешение на проведение данных работ.

Характеристики
Тип: КВм
Вид топлива: Дрова$Щепа$Опил$Кора
Мощность: 4.66 Гкал
Мощность: 5400 кВт
Мощность: 5.4 МВт
КПД, не менее: 82 %
Вид топки: Механическая колосниковая решётка
Класс котла: 1
Отапливаемая площадь: 54000 м²
Отапливаемый объём: 145800 м³
Тяга: Принудительная
Температура воды на выходе, не менее: 70...95 °С
Аэродинамическое сопротивление: 210 Па (мм. вод. ст.)
Расход теплоносителя среды: 186 м³/ч
Расход условного топлива: 811 кг/ч
Расход топлива: 1135 кг/ч
Массовый расход уходящих газов: 3.15 кг/с
Низшая теплота сгорания топлива: 5000 кКал/кг
Давление рабочей среды: 0,6 МПа (кгс/cм²)
Гидравлическое сопротивление при перепаде t: 0,08 МПа (кгс/cм²)
Температура воды на входе в котёл, не менее: 60 °C
Температура уходящих газов: 170…250 °C
Радиационная поверхность нагрева: 32.1 м²
Конвективная поверхность нагрева: 109.8 м²
Номинальное разрежение в топке при работе: 20…60 Па
Габаритные размеры (ДxШxВ): 5600х2150х3000 м
Масса котла (без воды): 6900 кг
Расчетный срок службы, не менее: 10 лет

Города поставок

Москва
Пн-Пт 09:00 - 18:00
Сб 09:00 - 17:00
Карачаево-Черкесская Республика
Пн-Пт 09:00 - 18:00
Сб 09:00 - 17:00
Екатеринбург
Пн-Пт 09:00 - 18:00
Сб 09:00 - 17:00

Совершите покупку за 4 шага

Шаг 1
Выберите товары из каталога
Шаг 2
Поместите нужные вам товары в корзины
Шаг 3
Укажите свои контактные данные в форме обратной связи
Шаг 5
Ожидайте звонка от менеджера для оформления покупки

Похожие товары

КВм
Котлы КВм
Цена от 0 руб.
Отопительные котлы
Водогрейный котел КВм-7.0 на ДВО используется для нагрева жидкости до 115 °С, применяемой в системах отопления и горячего водоснабжения. Отопительные приборы КВм-7.0 способны прогревать помещения площадью до 70000 м². Твердотопливный котел оснащается механической топкой на древесных отходах со шнековой подачей. Дополнительно к агрегату приобретаются сопутствующие товары: вентиляторы, дымососы, циклоны, дымовые трубы, бункер топки и другое котельное оборудование.
Отопительные котлы
Водогрейный котел КВм-6.3 на ДВО используется для нагрева жидкости до 115 °С, применяемой в системах отопления и горячего водоснабжения. Отопительные приборы КВм-6.3 способны прогревать помещения площадью до 63000 м². Твердотопливный котел оснащается механической топкой на древесных отходах со шнековой подачей. Дополнительно к агрегату приобретаются сопутствующие товары: вентиляторы, дымососы, циклоны, дымовые трубы, бункер топки и другое котельное оборудование.
Вы смотрели эти товары
Отопительные котлы
Водогрейный котел КВм-5.4 на ДВО используется для нагрева жидкости до 115 °С, применяемой в системах отопления и горячего водоснабжения. Отопительные приборы КВм-5.4 способны прогревать помещения площадью до 54000 м². Твердотопливный котел оснащается механической топкой на древесных отходах со шнековой подачей. Дополнительно к агрегату приобретаются сопутствующие товары: вентиляторы, дымососы, циклоны, дымовые трубы, бункер топки и другое котельное оборудование.
Отопительные котлы
Водогрейный котел КВм-3.5 на ДВО используется для нагрева жидкости до 115 °С, применяемой в системах отопления и горячего водоснабжения. Отопительные приборы КВм-3.5 способны прогревать помещения площадью до 35000 м². Твердотопливный котел оснащается механической топкой на древесных отходах со шнековой подачей. Дополнительно к агрегату приобретаются сопутствующие товары: вентиляторы, дымососы, циклоны, дымовые трубы, бункер топки и другое котельное оборудование.
Комплексон-6 (pH)
Система водоподготовки «Комплексон-6» (рН-2,5) предназначена для контроля над состоянием щелочности воды, а также растворенных в воде веществ, которые могут вызывать коррозию и закупорку труб в водопроводах. Используется наиболее часто в котельных, для контроля над состоянием воды и ее дальнейшую подачу в общую систему отопления. Также используется в химической, нефтяной, металлургической промышленности для контроля качества воды.